* Rezervace *
Představujeme vám rodinný dům na prodej v jedné z nejoblíbenějších lokalit Brna. Tento dům je ideální volbou pro ty, kteří hledají prostor a pohodlí v klidném prostředí, přičemž se nachází v blízkosti veškeré občanské vybavenosti.
Hned po vstupu se ocitnete ve světlé vstupní hale, která vás přivítá příjemnou atmosférou a navodí pocit domova. Z kuchyně se otevírá výhled do klidného dvora, což vám umožní vychutnávat si ranní kávu na čerstvém vzduchu. Obytné pokoje poskytují dostatek prostoru pro rodinné aktivity a interiér působí prostorně, což zajišťuje komfortní bydlení pro celou rodinu.
Z ložnice je přímý vstup na terasu s odpoledním sluncem, ideální pro relaxaci po náročném dni. Dvůr nabízí dostatek soukromí, prostor pro setkávání s přáteli i pro menší zahradní projekt, kde můžete realizovat své zahradnické sny. Půdní prostor představuje další potenciál, neboť nabízí možnost vytvoření další obytné místnosti, která může sloužit jako pracovna nebo pokoj pro hosty.
Součástí domu je také sklepní prostor, který poskytuje dostatek úložného místa. Dům je určen k rekonstrukci, což vám dává jedinečnou příležitost přetvořit si jej dle svých představ.
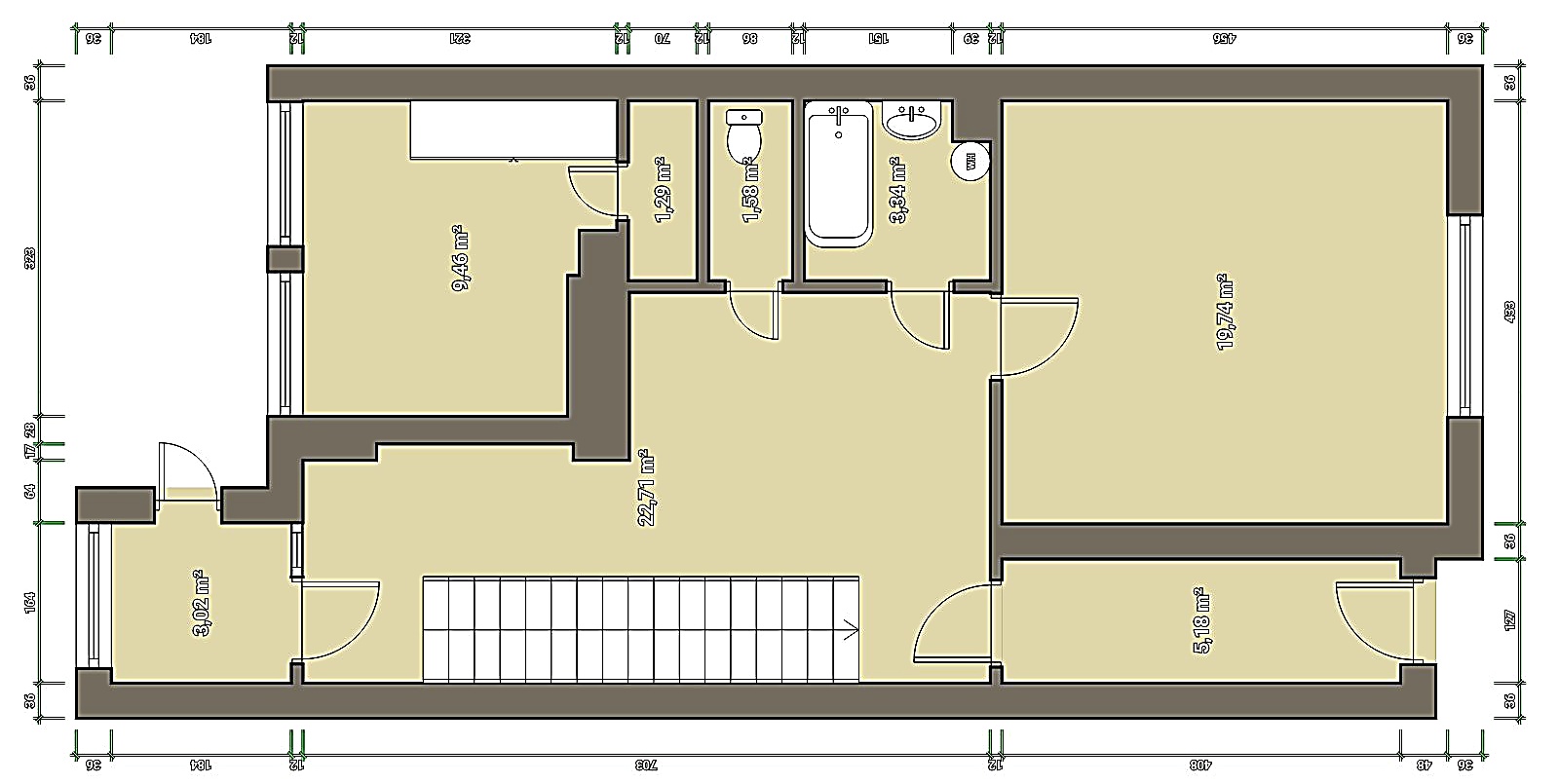
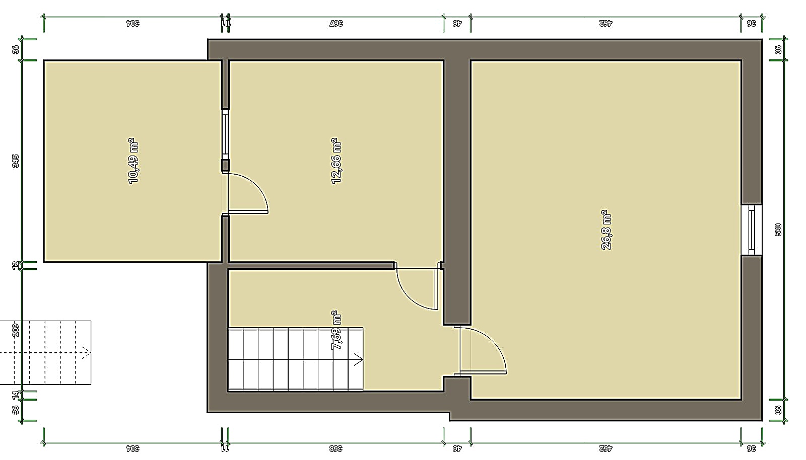
Pro vaši lepší orientaci jsou k dispozici plánky a technická zpráva o stavu nemovitosti, která je zde ke stažení.
Výměry jsou orientační.
Pokud chcete bydlet v blízkosti řeky Svratky a lesa, neváhejte se mi ozvat – budu se těšit při osobní prohlídce.
Tech. parametry:
|
Lokalita |
Brno - město |
|
Část obce |
Jundrov |
|
Topení |
Radiátory, p. kotel |
|
Plocha pozemku |
136 m² |
|
Užitná plocha |
cca 121 m² |
|
Podlahová plocha |
cca 95 m² |
|
Stav objektu |
k rekonstrukci |
|
Budova |
Cihlová |
|
Umístění objektu |
Okraj Bena |
|
Zástavba |
Obytná |
|
En. náročnost b. |
nedodán |
|
Zařízený |
Částečně |
|
Komunikace |
Asfaltová |
|
Doprava |
Silnice, Autobus, |
|
plyn |
ANO |
|
Elektřina |
ANO |
|
Odpad |
Obecní kanalizace |
Cena:



Jmenuji se Nela Masaryková a jsem realitní makléřka s vášní pro to, co dělám. Mým cílem je provést Vás celým procesem prodeje nemovitosti s úsměvem a s důrazem na to, že pro každý problém existuje řešení.
Miluji kontakt s lidmi a řešení výzev, které se při prodeji nemovitostí mohou objevit.
Důvěra mezi mnou a klientem je pro mě klíčová. Proto dostáváte ode mě vždy přesné informace a celý obchod se nese v příjemném duchu, ať už je jednoduchý nebo komplikovaný.
Věřím, že detaily dělají dokonalost. Ať už je to příprava nemovitosti pro prodej, vytvoření dokonalého inzerátu s profesionálními fotografiemi, video prohlídkou, 3D půdorysy, home stagingem, virtuálním stagingem, vizualizacemi, 3D scanem nemovitosti, nebo záběry z dronu.